
小代君說
建筑智能化系統主要由安全防范系統、信息通訊網絡系統、物業管理與監控系統、基礎設施與技術四部分組成,具體組成如下圖總結:


下面對整個智能化系統的施工安裝做法進行圖文展示,分享給盟友們參考!
一、安全防范系統
1、對講子系統設備安裝圖示:

門口機墻裝圖示

門口機配獨立底座安裝圖示

門口機門上裝圖示

室內分機安裝圖示
2、周界防越及報警聯動子系統設備安裝圖示:

主動紅外探測器安裝示意圖
3、閉路電視監控子系統設備安裝圖示:

周界攝像機與紅外探測器關系示意圖

一體化球機安裝示意圖
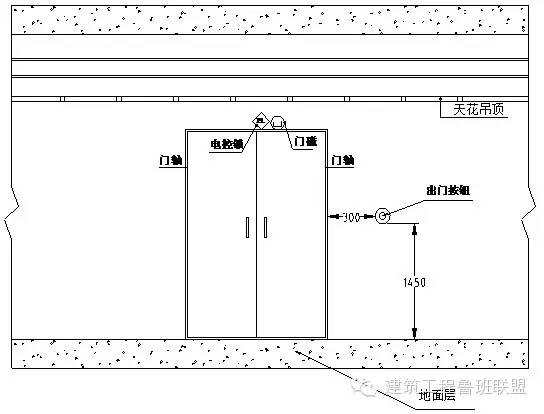
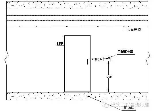
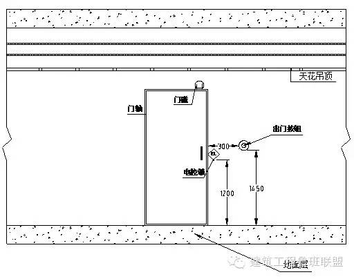
4、門禁管理子系統設備安裝圖示:

門口門禁機安裝圖示(雙門,門內、外側)

門禁機安裝圖示(單門,門外側)

門禁機安裝圖示(單門,門內側)
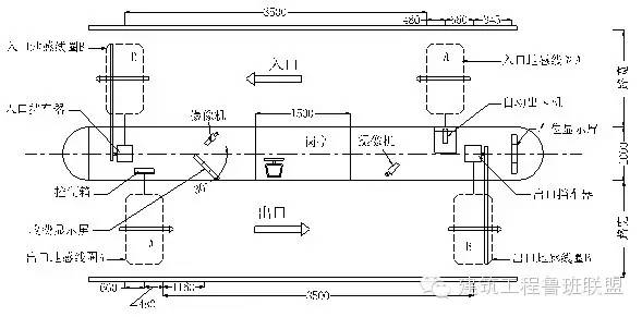
5、停車場管理子系統設備安裝圖示:

共用崗亭設備安裝圖示

入口與出口分離設備安裝圖示
6、電子巡更子系統設備安裝圖示
7、室內安防子系統設備安裝圖示:

門磁開關安裝圖示

紅外/微波雙鑒探測器安裝圖示

幕簾探測器安裝圖示
二、信息通訊網絡系統
1、電話子系統設備安裝圖示:

電話插座安裝圖示
2、有線電視子系統設備安裝圖示:

有線電視插座安裝圖示
3、信息網絡子系統設備安裝圖示:

LED觸摸屏安裝圖示
三、 物業管理與監控系統
1、設備監控子系統
2、 背景音樂與緊急廣播子系統設備安裝圖示:

吸頂式揚聲器安裝圖示

壁掛式揚聲器安裝圖示

草坪音箱安裝圖示

室外揚聲器與首層業主家的距離
3、物業管理子系統
四、基礎設施與技術
1、電源與接地子系統
2、 中控室機房子系統設備安裝圖示:

中控室設備布置圖示(安防監控室與消防控制室合用)







